retail
office
ID MLAUS0014456Updated
Lease
1 Charles Street Plaza
1 Charles Street Plaza
Adelaide, South Australia, 5000
Please contact us for price
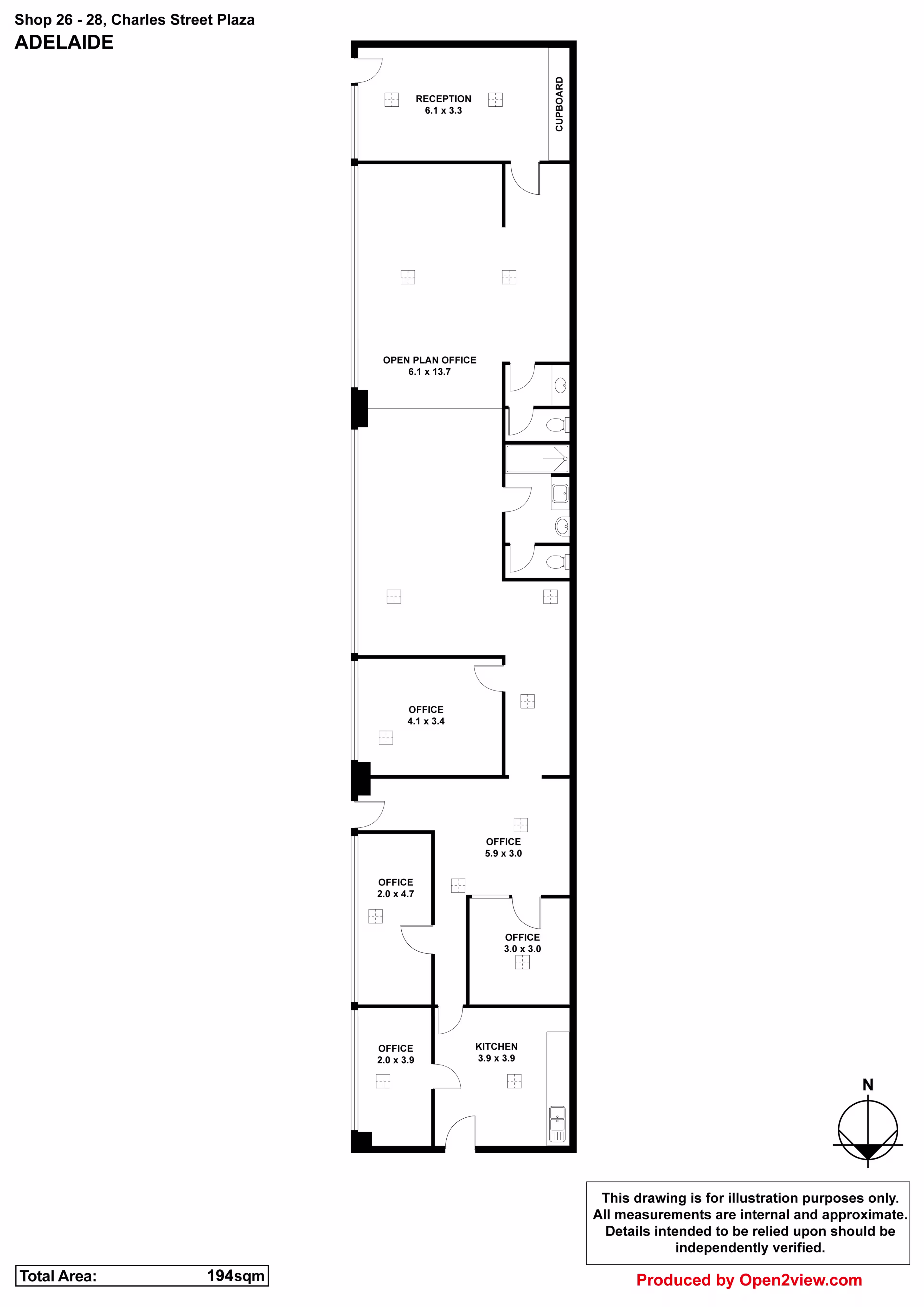
- Size194 SQM

Victoria Tallarida
Associate Director, Retail & LFR Leasing - SA
Agent details

Tom Budarick
Head of Office Leasing - SA
Agent details
- Description
- Building Information
- Location
- Agents
- Enquire
Description
Ground Floor Opportunity on Austin Street, Adelaide
Secure this exceptional 194 sqm* ground floor tenancy at a highly competitive rate. Flooded with natural light through extensive floor-to-ceiling glazing, this versatile space offers a great environment at an accessible price point.
Key Features: The tenancy includes a practical existing fit-out with kitchen facilities and separate male and female amenities complete with shower facilities. This flexible configuration suits diverse commercial applications including corporate offices, creative studios, wellness, and Pilates studios.
Strategic Location: Positioned just off North Terrace, the property enjoys excellent connectivity to Adelaide's key precincts. Within walking distance of major universities and established business districts, with convenient access to multiple car park facilities. The tenancy benefits from dual access points via both North Terrace and Rundle Mall.
Added Value: Landlord incentives available for suitable tenants.
An outstanding opportunity to establish your business in Adelaide's CBD at exceptional value.
Please Contact Tom Budarick or Victoria Tallarida for further details.
*Approximately | RLA1842
Secure this exceptional 194 sqm* ground floor tenancy at a highly competitive rate. Flooded with natural light through extensive floor-to-ceiling glazing, this versatile space offers a great environment at an accessible price point.
Key Features: The tenancy includes a practical existing fit-out with kitchen facilities and separate male and female amenities complete with shower facilities. This flexible configuration suits diverse commercial applications including corporate offices, creative studios, wellness, and Pilates studios.
Strategic Location: Positioned just off North Terrace, the property enjoys excellent connectivity to Adelaide's key precincts. Within walking distance of major universities and established business districts, with convenient access to multiple car park facilities. The tenancy benefits from dual access points via both North Terrace and Rundle Mall.
Added Value: Landlord incentives available for suitable tenants.
An outstanding opportunity to establish your business in Adelaide's CBD at exceptional value.
Please Contact Tom Budarick or Victoria Tallarida for further details.
*Approximately | RLA1842
Location
Agents

Victoria Tallarida
Associate Director, Retail & LFR Leasing - SA
Agent details

Tom Budarick
Head of Office Leasing - SA
Agent details

















